スピティ 尼崎市立花町3丁目限定1棟[尼崎]

所在地:尼崎市立花町3丁目 限定1棟

土地面積:70.16㎡
建物構造:木造3階建 4LDK
土地建物価格:税込4,480万円

<交通アクセス>
JR東海道本線「立花駅」歩8分

販売取扱店
(株)リベラーム
TEL:06-4950-5305

事業主:有限会社 英富士

お問い合わせ

イメージ写真

 
※色分前のイメージホワイトパースです。サイティング色分け可。

 

クリックで拡大↑クリック

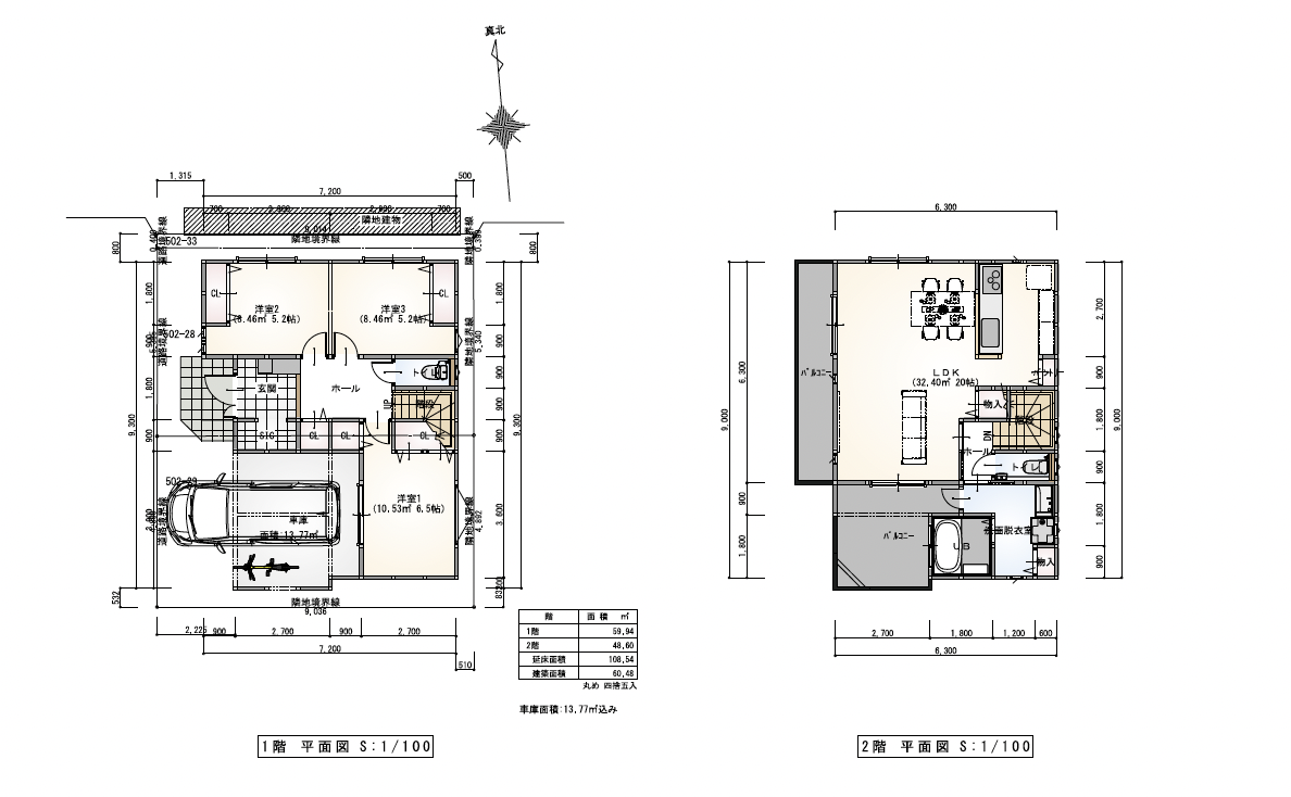
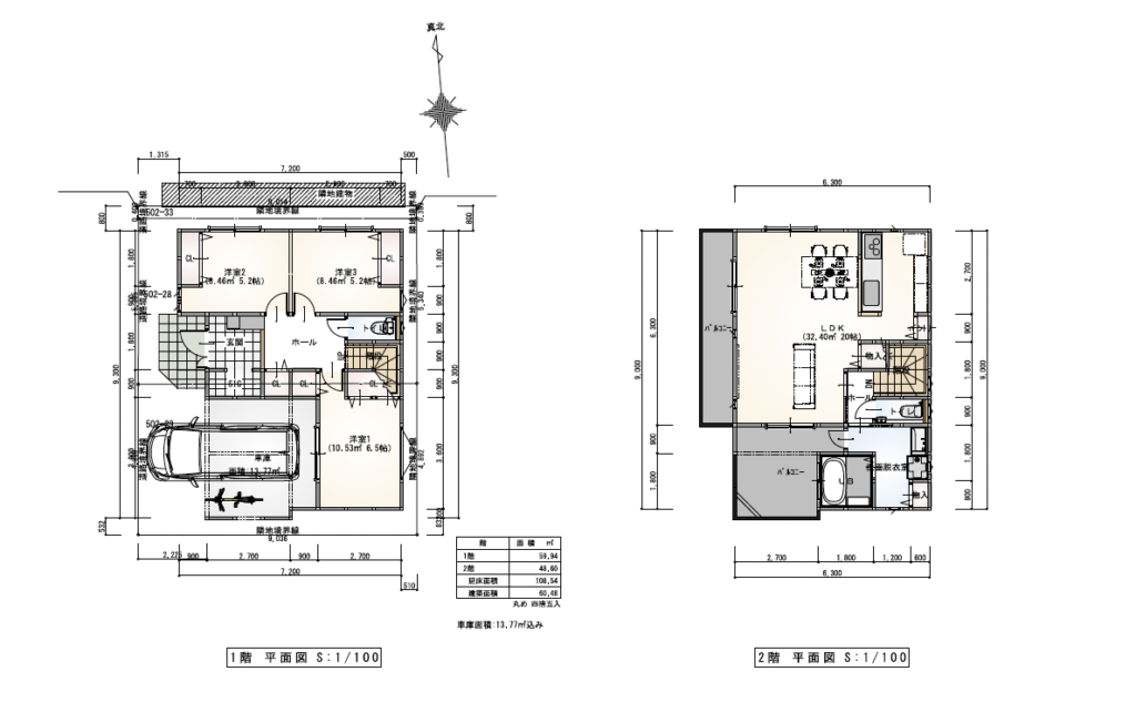
平面図

クリックで拡大↑クリック

立面図

所在地マップ

スピティ 尼崎市武庫町3丁目限定1棟[尼崎]

所在地:尼崎市武庫町3丁目 限定1棟

土地面積:49.74㎡
建物構造:木造3階建 3LDK
土地建物価格:税込3,680万円

<交通アクセス>
阪急神戸線「武庫之荘」歩23分

販売取扱店
三井不動産リアリティ(株)
TEL:0120-984-631

事業主:有限会社 英富士

お問い合わせ

イメージ写真

 
※色分前のイメージホワイトパースです。サイティング色分け可。

 

クリックで拡大↑クリック

平面図

クリックで拡大↑クリック

立面図

所在地マップ

スピティ 七松町2丁目B街区 限定1棟[尼崎]

所在地:七松町2丁目B街区
限定1棟

土地面積:43.07㎡ (別途私道負担約約3.67㎡)
建物構造:木造3階建 2LDK
土地建物価格:税込3,180万円

<交通アクセス>
JR神戸線「立花駅」駅徒歩約7分

販売取扱店
三井不動産リアルティ(株)
TEL:0120-984-631

事業主:有限会社 英富士

お問い合わせ

イメージ写真

 

平面図

クリックで拡大↑クリック

立面図

所在地マップ

スピティ 七松町2丁目A街区 限定1棟[尼崎]

所在地:七松町2丁目A街区
限定1棟

土地面積:約63.78㎡ 
建物構造:木造3階建 3LDK
土地建物価格:税込4,280万円

<交通アクセス>
JR神戸線「立花駅」駅徒歩約5分

販売取扱店
三井不動産リアルティ(株)
TEL:0120-984-631

事業主:有限会社 英富士

お問い合わせ

イメージ写真



 

平面図

クリックで拡大↑クリック

立面図

所在地マップ

スピティ 上ノ島町1丁目限定1棟[尼崎]

所在地:尼崎市上ノ島町一丁目
限定1棟

土地面積:57.86㎡ (別途私道負担約約10.77㎡)
建物構造:木造3階建 2SLDK
土地建物価格:税込3,980万円

<交通アクセス>
阪急神戸線「武庫之荘」駅徒歩9分

販売取扱店
三井不動産リアルティ(株)
TEL:0120-984-631

事業主:有限会社 英富士

お問い合わせ

イメージ写真

 

平面図

クリックで拡大↑クリック

立面図

所在地マップ

スピティ 神田南通1丁目限定1棟[尼崎]

所在地:尼崎市神田南通1丁目25−3
限定1棟

土地面積:43.96㎡
建物構造:木造3階建 3LDK
土地建物価格:税込3,180万円

<交通アクセス>
阪神線「尼崎」徒歩7分

販売取扱店
(株)リベラーム
TEL:06-4950-5305

事業主:有限会社 英富士

お問い合わせ

イメージ写真

 

クリックで拡大↑クリック

平面図

クリックで拡大↑クリック

立面図

所在地マップ

スピティ 尼崎市尾浜2丁目限定1棟[尼崎]

所在地:尼崎市尾浜2丁目
限定1棟

土地面積:50.41㎡
建物構造:木造3階建 3LDK
土地建物価格:税込3,780万円

<交通アクセス>
JR東海道本線「尼崎」歩22分
阪急神戸線「塚口」歩25分

販売取扱店
(株)リベラーム
TEL:06-4950-5305

事業主:有限会社 英富士

お問い合わせ

イメージ写真

 
※色分前のイメージホワイトパースです。サイティング色分け可。

 

クリックで拡大↑クリック

平面図

クリックで拡大↑クリック

立面図

所在地マップ

スピティ西難波公園1丁目2号地1棟[尼崎]

新築分譲開始!!

所在地:尼崎市西難波1丁目
全3棟

土地面積:約100.09㎡
建物構造:木造2階建 4LDK
土地建物価格:税込4,880万円

<交通アクセス>
JR神戸本線「立花」徒歩約17分
阪神本線「出屋敷」徒歩約18分

販売取扱店
センチュリー21(株)エイワーク
塚口店 0800-812-4788
センチュリー21(株)エイワーク
武庫之荘南店 0800-603-2986
センチュリー21(株)アクロスコーポレイション
武庫之荘店 0800-603-2204

事業主:有限会社 英富士

お問い合わせ

イメージ図

区割図


2号地プラン提案図

所在地マップ

スピティ食満5丁目限定1棟[尼崎]

所在地:尼崎市食満5丁目
1棟限定分譲住宅販売!!

土地面積:111.22㎡
建物構造:木造2階建 4LDK
土地建物価格:税込4,180万円

<交通アクセス>
阪急園田駅 徒歩22分

販売取扱店
アクロスコーポレーション塚口店
TEL:06-6421-2211

事業主:有限会社 英富士

お問い合わせ

イメージ写真

クリックで拡大↑クリック

平面図

クリックで拡大↑クリック

立面図

所在地マップ

スピティ 武庫町1丁目限定1棟[尼崎]

所在地:尼崎市武庫町1丁目
限定1棟・3階建譲住宅!!

土地面積:53.95㎡
建物構造:木造3階建 3LDK
土地建物価格:税込3,780万円

<交通アクセス>
阪急武庫之荘駅 徒歩15分

販売取扱店
三井のリハウス
三井不動産リアリティー㈱武庫之荘センター
TEL:0120-984-631

事業主:有限会社 英富士

お問い合わせ

イメージ写真

クリックで拡大↑クリック

平面図

クリックで拡大↑クリック

立面図

所在地マップ