スピティ 尼崎市杭瀬北新町3丁目限定1棟[尼崎]

所在地:尼崎市杭瀬北新町3丁目 限定1棟

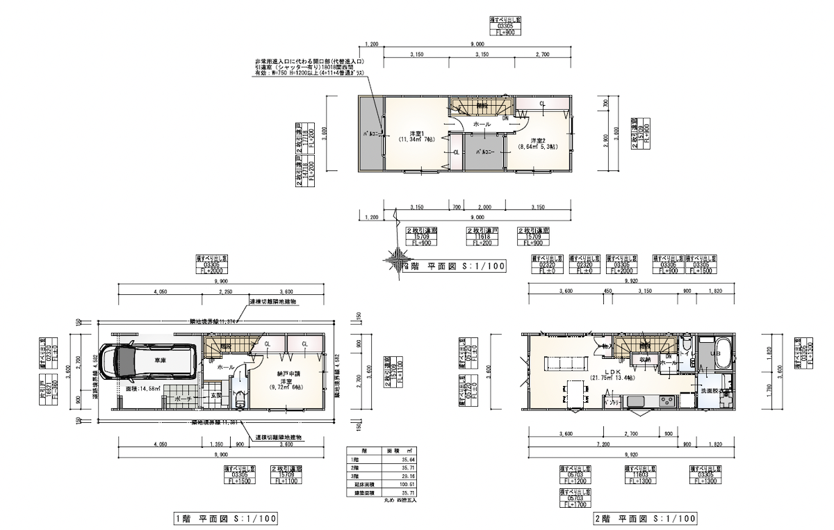
土地面積:55.55㎡
建物構造:木造3階建 3LDK
土地建物価格:税込3,680万円

<交通アクセス>
阪神本線「杭瀬駅」歩8分

販売取扱店
(株)リベラーム
TEL:06-4950-5305

事業主:有限会社 英富士

お問い合わせ

イメージ写真

クリックで拡大↑クリック

平面図

クリックで拡大↑クリック

立面図

所在地マップ